• Projects
  • About Us
    • Our Team
  • Services
    • Specialised Services
  • Contact Us
  • Job Vacancies
  • Industrial
  • Blanchardstown Corporate Park
  • Apex Hub Calmount
  • Unit 1, Apex Hub
  • Commercial/Offices
  • Infrastructure
  • Residential
  • Refurbishment
  • Retail
  • Institutional
  • Educational/Health
  • Hospitality
  • Sports/Leisure
  • Speciality Design
  • Bespoke
  • DFK Celebrates 20 Years
  • News
  • Precast Design
  • Steel Connection Design
  • Fire Engineering
  • Geotechnical Engineering
  • Kore
  • Company Profile
  • Company Policies
  • Quality
  • Safety Policy
  • CDP
  • Emmet Finegan DFK Director
  • Cathal Kelly DFK Director
  • Robert Bagnall Director
  • Liam Murphy Regional Director
  • Sean Gibbons Associate
  • Allessio Di Leonardo Associate
  • Keith Brennan Associate
  • Francis Doherty Consultant Director
  • Stemple Exchange
  • Loughrea Office Development
  • Block D Beacon Court
  • The Hampstead Building
  • House in Louisburgh
  • The Herbert Building
  • Hatch Street
  • Presbyterian Church
  • Hyde Building
  • Plaza Building
  • Park Square
  • O'Rielly
  • DFK Headquaters
  • Block 60
  • Loughrea Shopping Centre
  • Gorey Credit Union
  • Railway House
  • Ballymaquire Foods
  • Colm Quinn
  • Bettystown
  • Ballsgrove Chilcare
  • Res -Ballyfermot
  • Res - Donore Road
  • The Charter School
  • Porsche Centre
  • Fitzgerald Gardens
  • Louth County Council Infill
  • Baltray, Louth
  • Daingean Road
  • Gleann Dromin
  • Res - Housing at Lagavoureen
  • Buttergate Apartments Drogheda
  • Res - Brookwood Castleknock
  • Res - Parnell Rd, Bray
  • Botonic Rd Residential
  • Res - Ballbriggan Residential Development
  • Res - Laytown
  • Res - Parkgate Tullow
  • Res -Breymore Pastures
  • Res-Lakeview Apartments
  • Res - Dundalk Rd.
  • Res - Clongriffen
  • Res - Harbourville
  • Res - Barina
  • Res - Kells
  • Res - Blackrock
  • Res - Glenamuck Cottages
  • Churchview Nutgrove
  • Refurb - Halcom Court
  • Refurb - Carmelite Abbey
  • Refurb - Presto by Rubys
  • Refurb - Riddlers Rest
  • Refurb - Lough Gur Interpretive Centre
  • Refurb - Church of Immaculate
  • Refurb - Ardcath Church
  • Industrial - Unit 628
  • Industrial - Unit 629
  • Industrial - Unit 632
  • Industrial - Unit 633
  • Industrial - Unit 634
  • Industrial - Unit 635
  • Industrial - Unit 637
  • Industrial - Unit 638
  • Industrial Unit 736
  • Industrial - Unit 900
  • Industrial - O'Tooles
  • Whiskey Units
  • Industrial - Clonshaugh
  • Industrial - Digital
  • Health- Loughrea Medical
  • Health- MMM Bettystown
  • Health- Beech Hill
  • Health- Mount Hybla
  • Health- Beechfield Nursing Home
  • Health- Royal Hospital
  • Health- MMM Drogheda
  • Educational - Ark School Limerick
  • Educational - Anglesborough NS
  • Educational - Salesian University Residence
  • Educational - Scoile Chriost
  • Infra - Edenderry
  • Infra - Carrickmines
  • Infra - Profile Park
  • EU2 Data Centre, Clonee, Dublin 15
  • Infra - Northwest Logistic Park
  • Infra - National Oil Reserves
  • Insti - Sisters of Mercy Convent Kells
  • Insti - Garda Station Drogheda
  • Insti - Met Office Cork
  • Insti - Castledermot Community Centre
  • Insti - Pauls Community
  • Insti -Moyross Community
  • Insti - St Munchin
  • Insti -Porlaw Fire Station
  • Insti- St Mary's Church
  • Hos - The Ripley Court
  • Hos -Donegan
  • Hos - Lime Kiln
  • Hos - Ruby's Restaurant
  • Hos -Mc Closkey's Bakery
  • Sports -Naas Racecourse
  • Sports - Malahide United
  • Sports - St Brigids GAA
  • Sports -WCFC
  • Sports - K Club
  • Sports -Sports Ireland Institute
  • Bespoke - Druidswood
  • Bespoke-Avoca
  • Bespoke - Heidelberg
  • Bespoke -The Beeches
  • Bespoke -The Mayne
  • Bespoke - Tower
  • Bespoke - Shore Rd
  • Bespoke- Laytown
  • Bespoke- Summerhill
  • Spec D- One Microsoft
  • Spec D- Sapling School
  • Spec D- Intel
  • Spec D- Ship Street
  • Spec D- New Childrens Hospital
3340-site-favicon-dfk-180-×-180px-3.png
Doherty Finegan Kelly
3342-fitzgerald-gardens-17437835174054.png

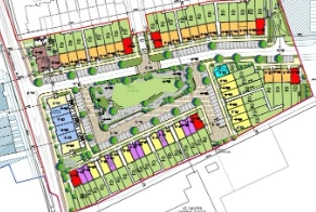
The development will consist of 69 No. residential units on a site of 1.985 Ha. The units will consist of 49 No. terraced and end of terrace houses and 20. no. duplex units, all with associated site development works.

Residential Development at Fitzgerald Gardens, Ballymakenny, Drogheda, Co. Louth

  • 3347-residential-development-at-fitzgerald-gardens-ballymakenny-drogheda-co-louth-17437791439925.png
  • 3347-fitzgerald-gardens-siteplans-17437835171747.png
  • 3347-dfk-fitzgeralds-gardens-17437835173581.png

Client: Fitzgerald Gardens Residential Limited

Civil & Structural Engineer: DFK

  • Contact Us
  • News
  • DFK Celebrates 20 Years
  • Job Vacancies
  • 840-untitled-design-1.png
  • 840-untitled-design.png

Address: Botanic Court, 30-32 Botanic Road, Glasnevin, Dublin 9
Phone: +353-1-8301852

E-mail: mailroom@dfk.ie